5 locali in vendita

Genova, Piazzetta Barisone - Molo
€ 319.000
6 locali 6 locali
184 Mq 184 Mq
2 bagni 2 bagni

5 locali in vendita

Genova, Piazzetta Barisone - Molo

Descrizione annuncio

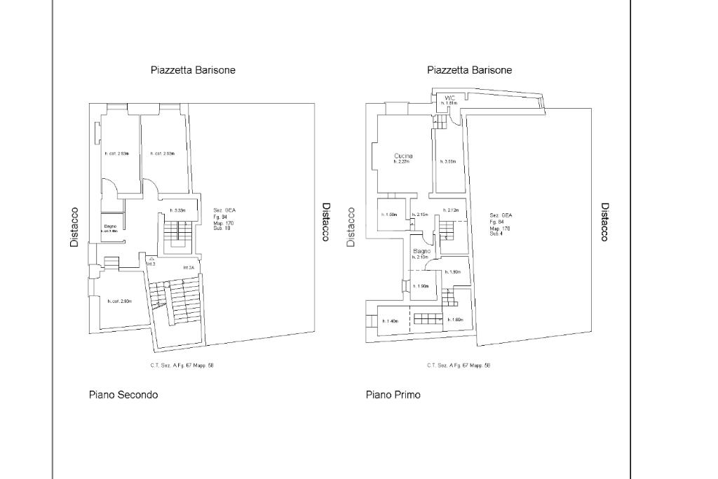
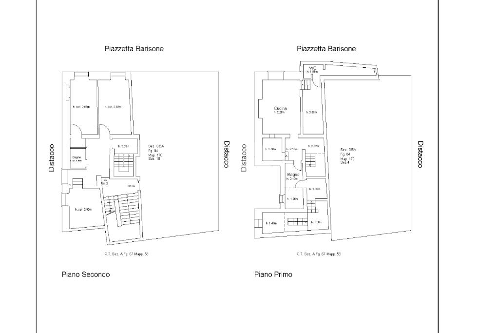
Piazzetta Barisone - zona Molo - In pieno centro storico, proponiamo uno splendido appartamento di 184 mq completamente ristrutturato e situato al secondo piano di una palazzina in buono stato.
L'immobile, molto luminoso e accogliente, offre una splendida vista sulla chiesa Dei Santi Cosma e Damiano.

Si divide su due livelli, al primo troviamo la zone notte con tre camere da letto matrimoniali, un bagno e un ampia zona di collegamento utilizzabile come soggiorno.

Nel livello sottostante troviamo, una camera da letto, un bagno, la zona living cucina / soggiorno che affaccia direttamente sul tetto della chiesa di San Cosimo, zona lavanderia e una cantina con accesso interno all'appartamento.

Grazie alle sue caratteristiche e alla sua posizione strategica, questo appartamento è ideale sia come residenza principale che per investimento. La vicinanza alle facoltà universitarie e alle principali attrazioni turistiche del centro storico genovese lo rende particolarmente appetibile per diverse esigenze. Bassi costi di amministrazione.

Mostra tutto

Nelle vicinanze

Trasporto pubblico Trasporto pubblico
San Giorgio
San Giorgio
230 m
Sarzano/Sant'Agostino
Sarzano/Sant'Agostino
350 m
stazione di Genova Piazza Principe
stazione di Genova Piazza Principe
1,3 Km
stazione di Genova Brignole
stazione di Genova Brignole
1,4 Km
Cavour / Mercato del Pesce
Cavour / Mercato del Pesce
120 m
Ricariche auto elettriche Ricariche auto elettriche
Eneldrive Palazzo Ducale
310 m
Porto Antico di Genova
330 m
Eneldrive Marina Molo Vecchio
470 m
Genova Caricamento | EnelX
480 m
Eneldrive Carducci
610 m
Scuole Scuole
CPIA Centro Levante
170 m
Palazzo Verde . Magazzini dell’Abbondanza
180 m
Facoltà di Architettura
260 m
Scuola G. Baliano
330 m
Scuola Garaventa Don Gallo
330 m
Farmacia Farmacia
Farmacia Operaia San Giorgio
70 m
Farmacia Cavour
130 m
Farmacia Operaia Sormani
200 m
Farmacia 5 Lampadi
230 m
Farmacia del Duomo
240 m
Ospedali Ospedali
Ospedale Galliera
1,3 Km
Ospedale Evangelico Internazionale
1,4 Km
Ospedale Villa Scassi
2,7 Km
Clinica Villa Serena
2,8 Km
Casa di Cura Villa Montallegro
3,0 Km
Supermercati Supermercati
Ekom
130 m
Carrefour Express
270 m
Super è il mio Mercato
390 m
Coop
570 m
Supermercati
610 m
Negozi Negozi
Panificio Zangaro
20 m
Negozi
50 m
Pasticceria Il nuovo forno
70 m
Pan per focaccia
180 m
Focaccia e dintorni
200 m
Bar Bar
Nick Masaniello
60 m
Bar
60 m
Bar Mario S
60 m
Little Italy
150 m
Lucrezia social bar
150 m
Ristoranti Ristoranti
Trattoria Il Grillo Parlante
20 m
Bistrot Delle Grazie
30 m
Cucina Osteria La Mandragola
30 m
Trattoria delle Grazie
30 m
Trattoria Gianna
50 m
Mostra tutto

Caratteristiche

Rif.:
61106517
Piano:
2 di 6 (Piano medio)
Camere da letto:
4
Arredamento:
Completo
Condizionamento:
Autonomo
Ascensore:
No
Mostra tutto
Prezzo Prezzo
€ 319.000
Rata mutuo Rata mutuo
€ 1.490 / mese
Spese annue Spese annue
€ 1.200
Proponi il tuo prezzoProponi il tuo prezzo

Classe Energetica

E
E
E
E
E
E
E
E
E
EP globale rinnovabile:
122.50 kW h/m² anno
EP invernale del fabbricato:
EP estiva del fabbricato:
Anno di costruzione:
1300
Riscaldamento:
Autonomo
Tipo impianto:
A radiatori
Tipo alimentazione:
Metano

Ti interessa visionare l'immobile?

Fissa un appuntamento  Fissa un appuntamento

Richiedi informazioni

Clicca su Leggi per aprire l'informativa
* Questi campi sono obbligatori

Calcola il tuo mutuo

Semplice e senza impegno
Anticipo

( % )
Mutuo

( % )

pochi semplici passi

inserisci i tuoi dati
Questionario completato
Grazie per aver richiesto un appuntamento senza impegno con un nostro Consulente del Credito e Assicurativo.

Hai inserito correttamente tutti i dati necessari e a breve riceverai una e-mail con un link da convalidare per inviare i tuoi dati.
Affiliato
Immobiliare Centro Storico Srls
P.zza della Nunziata, 21r 16124 Genova (GE)

Il nostro staff


  • Marco Geraci
    Affiliato

  • Andrea Vaccaro
    Affiliato
P.zza della Nunziata, 21r 16124 Genova (GE)
Zona: Genova
Mostra su mappa
Orari: 9-12.30 - 15.00-19.30
Affiliato
Immobiliare Centro Storico Srls
P.zza della Nunziata, 21r 16124 Genova (GE)

2026 Tecnocasa Franchising S.p.A. - P. IVA 08365160152 - Via Monte Bianco 60/A 20089 Rozzano (MI). Ogni agenzia ha un proprio titolare ed è autonoma. Privacy policy | Policy utilizzo | Cookie policy